1、概述
閥門作為流體控制系統中的關鍵部件,其設計和制造對工業生產具有重要意義。傳統金屬材料如碳鋼和不銹鋼等已無法滿足閥門在特定制造領域的使用要求。鈦和鈦合金作為一種新興的、有發展前景的金屬材料,以其高強度、低密度、優良的耐腐蝕性和出色的耐高溫性能而著稱。鈦合金在與各種腐蝕性介質接觸時表現出優異的穩定性,無論是海水、酸性溶液還是堿性環境,鈦合金閥門均能保持良好的耐腐蝕性能,極大延長了閥門的使用壽命。此外,鈦合金具有良好的可加工性,能夠通過各種加工手段制成復雜的形狀和結構,為閥門的設計和制造提供了極大的靈活性。這些特性使得鈦合金在閥門制造中具有顯著優勢,目前被廣泛用于 LNG 船、航空航天、宇宙開發、海洋工程、石油、化工、輕工、食品加工、冶金、電力、醫藥衛生、儀器儀表等行業。本文主要介紹了鈦和鈦合金球閥的典型結構設計及制造、部分零件的材料選用原則和表面處理工藝等。
2、鈦和鈦合金球閥的設計及制造
2.1 典型結構設計
傳統閥門的制造工藝主要有鑄造、鍛造和機械加工,過程繁瑣且成本較高,而 3D 打印制造技術的成熟為閥門的生產制造帶來了新的發展方向,為成本昂貴的鈦合金零件提供了更加經濟的制造工藝。
鈦和鈦合金球閥的閥體和閥蓋制造選用模鍛或 3D 打印成型,零件結構分別見圖 1 和圖 2 [1]。通過 3D 打印的方式一體化成型復雜結構,從而減少了加工步驟,提升效率。由于鈦閥主要應用在腐蝕性較強的介質中,因此在結構設計時應盡量減少潛在的外漏點。


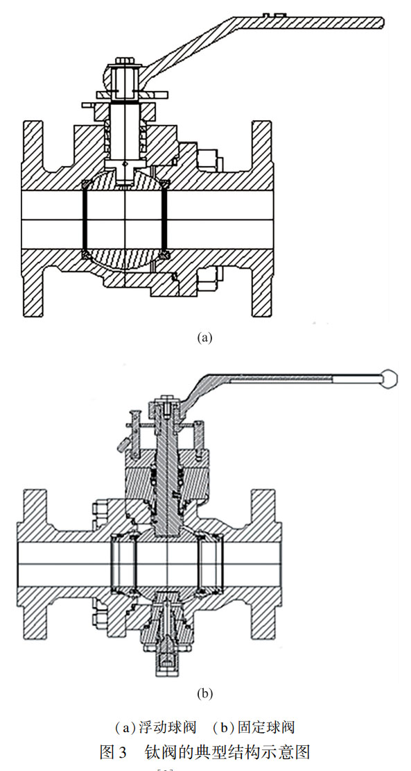
鈦和鈦合金球閥常用設計標準為 ASME B16.34、ISO 17292 和 API 6D 等,其典型結構包含浮動球閥和固定球閥,如圖 3 所示。典型結構鈦閥的閥門為兩片式結構,閥體和閥蓋的材料主要為工業純鈦,如 TA2/F2,球體和閥桿通常為鈦合金 TC4/F5 等;密封形式包括軟密封和金屬密封,閥門多數為雙向密封設計。閥門的連接方式有法蘭式(圖 3)、對夾式和焊接式等,其設計特點包括閥桿防吹出、防靜電裝置、防火設計以及可鎖設計等。球閥屬于 90° 開、關旋轉的閥門,當手柄與通道方向平行時,閥門處于全開位置,手柄順時針旋轉 90° 關閉閥門。圖 3 (a) 為浮動球閥,其優點是結構簡單、零件少、制造成本低和維修方便,但缺點包括高壓限制、操作扭矩大及雙向帶壓無法有效密封等;圖 3 (b) 為固定球閥,其優點是耐高壓、操作力小、雙向密封可靠,但缺點是結構復雜、零件多、成本高和維護復雜等 [2]。

2.2 額定設計壓力 [3]
ASME BPVC.II.D.M 標準規范中對鈦材的使用溫度進行了限制,即鍛件溫度限定在 316℃(600℉),鑄件溫度限定在 260℃(500℉);此外,還規定了不同溫度下材料的機械性能。ASME B16.34 標準規范中列出了常規金屬材料的額定溫壓值,但對于鈦和鈦合金材料的額定溫壓值并未規定,因此在設計時需要根據 ASME B16.34 附錄 B 計算,設計壓力取 Pca 與 Pst 中的較小值其中 Ps. 是標準磅級的極限壓力,Pat 是指定材料在相應溫度下的標準等級額定工作壓力當 Ps<Pc 時表達式為:



當客戶規范中規定了閥門的設計溫度與壓力值時,必須按照客戶規范規定的要求執行,如挪威石油標準 NORSOK L-001 中對鈦材 C2/F2 溫壓值的相關規定見表1。
表 1 NORSOK L-001 中 C2/F2 溫壓值 [5]
工作溫度 / ℃ | 工作壓力 / Bar |
150 | 300 |
-46/38 | 19.6、49.6 |
50 | 19.2、48.1 |
100 | 15、35 |
2.3 材料選用的基本原則
2.3.1 閥體與閥蓋
與常規黑色金屬材料相比,鈦和鈦合金具有彈性模量小、屈強比高、比強度(強度 / 重量)大等特點,典型鈦和鈦合金力學性能見表 2。鈦和鈦合金閥門的閥體、閥蓋等承壓件的材料選用以工業純鈦 F2/C2、F3/C3 居多,因鈦和鈦合金鑄件價格較高,在產品選型或設計時,需考慮所選方案的經濟合理性。例如,鈦和鈦合金球閥應優先考慮鍛造結構,其閥體與閥蓋以模鍛或 3D 打印等高性價比的結構為主,或選用市場容易購買的型材等。常用鍛件鈦和鈦合金 B381 F2/F3 在給定溫度下的彈性模量、泊松比和密度見表 3。
表 2 國內外典型鈦及鈦合金的力學性能 [6-10]
技術標準 | 牌號 | 狀態 | Rm / MPa | R0.2 / MPa | A / % | HBS |
中國(GB/T 6614)、美國(ASTM B367) | ZTA2(中國)、C2(美國) | 退火 | ≥345 | 275 | 15 | ≤210 |
中國(GB/T 6614)、美國(ASTM B367) | ZTA3(中國)、C3(美國) | 退火 | ≥450 | 380 | 12 | ≤235 |
中國(GB/T 6614)、美國(ASTM B367) | ZTC4(中國)、C5(美國) | 退火 | ≥895 | 825 | 6 | ≤365 |
中國(GB/T 2965)、美國(ASTM B381) | TA2(中國)、F2(美國) | - | ≥345 | 275 | 20 | ≤210 |
中國(GB/T 2965)、美國(ASTM B381) | TA3(中國)、F3(美國) | - | ≥450 | 380 | 18 | ≤235 |
中國(GB/T 2965)、美國(ASTM B381) | TC4(中國)、F5(美國) | - | ≥895 | 828 | 10 | ≤365 |
中國(GB/T 2965)、美國(ASTM B381) | TA10(中國)、F12(美國) | - | - | ≥483 | 345 | 18、≤235 |
表 3 B381 F2/F3 彈性模量、泊松比與密度 [4]
參數 | 數值 |
溫度 /℃(彈性模量 E/(×103MPa)) | 25℃:107;100℃:103;150℃:101;200℃:97;250℃:93;300℃:88;350℃:84;400℃:80 |
泊松比 | 0.32 |
密度 /(kg/m3) | 4510 |
2.3.2 內件材料
鈦和鈦合金閥門的球體、閥桿等內件推薦使用強度較高 F5/F12 等合金鈦,閥門要求絕緣時閥桿表面進行 DLC 處理。軟密封閥門的閥座選用 PTFE、RPTFE、DEVLON、PEEK 等材料,具體材料的選擇需滿足工況要求;而硬密封閥門的密封副配對材料應選用硬度不同的鈦材,或將密封面進行硬化處理,如滲氮、噴涂 WC/CrC 等,防止閥門開關過程中出現粘接、拉傷現象,從而導致閥門泄漏。鈦和鈦合金球閥設計推薦材料配對見表 4。
表 4 推薦材料配對表
閥種 | 閥體、閥蓋 | 閥桿 | 閥座 | 球體 |
軟密封 | - | F5/F12 | PTFE/RPTFE/DEVLON/PEEK | F5 |
硬密封 | F2/F3 | F5+CrC/WC | - | F5+CrC/WC |
2.3.3 彈簧材料
彈簧材料的選用主要分為與介質接觸和非接觸。接觸介質的彈簧主要為鈦合金碟形彈簧,常用材料為 ASTM B348 Gr.5/TC4,結構示意圖如圖 4 所示 [11]。由于鈦材的彈性模量較小,當選用鈦材彈簧時,按照 GB/T1972-2005 和相關資料 [12] 中的方法進行設計計算。若介質腐蝕性較低,則彈簧材料可選用 INCONEL 合金替代。非接觸介質的彈簧材料為 17-7PH 或 316,當客戶指定或使用在腐蝕性環境時,選用 INCONEL 合金。
2.3.4 緊固件與墊片材料
受管道介質壓力的作用,鈦材在溫度較低時也會發生一定程度的蠕變,從而產生應力松弛。 對于與介質非直接接觸的鈦材閥門緊固件,推薦選用奧氏體不銹鋼材質,如 B8M/ 8M。 若閥門的外部環境同樣具有較強的耐蝕要求或客戶特殊要求,則緊固件使用 INCONEL 合金或客戶指定材料,但與介質直接接觸的緊固件須使用鈦材。
墊片材料選用 PTFE 或石墨,結構形式主要是平墊片和纏繞墊片。 平墊片材料選用純 PTFE 或純石墨,纏繞墊片材料選用 TA2 + PTFE 或 TA2 + 石墨,具體材料選擇根據實際工況及客戶要求。
2.3.5 鈦材零件表面絕緣材料
在閥門絕緣保護時,鈦材與非鈦材直接接觸的部位需進行絕緣處理,處理方法如下:
(1)閥體、閥蓋接觸部位陽極氧化或微弧氧化處理;
(2)閥桿表面 DLC 處理;
(3)非鈦材外部緊固件表面 NYLOK 涂膠處理。
3、鈦和鈦合金閥門零件的表面處理
3.1 超音速火焰噴涂
超音速火焰噴涂 HVOF(High Velocity Oxy-Fuel)是指利用丙烷、丙烯等碳氫系燃氣或氫氣與高壓氧氣在燃燒室內或在特殊的噴嘴中燃燒,使其產生高溫、高速(燃燒焰流速度達到 5 馬赫(1500m/s)以上)的工藝手段 [13]。HVOF 工藝的涂層厚度可以達到 350μm~500μm,加工后保留的涂層厚度≥150μm。為防止外形不規則的零件噴涂后涂層開裂,在噴涂后需在溫控箱中均勻緩慢冷卻。采用 HVOF 工藝制備的 Cr3C2-25NiCr 和 WC-25Co 涂層均具有較好的耐腐蝕和耐磨性能,適用于鈦合金閥門硬密封表面。
3.2 物理氣相沉積
物理氣相沉積 PVD(Physical Vapor Deposition)是指利用物理過程實現物質轉移,將原子或分子由源轉移到基材表面上的過程,將某些有特殊性能(強度高、耐磨性、散熱性、耐腐性等)的微粒噴涂在性能較低的母體上,使母體具有更好的性能 [14]。PVD 的基本方法包括真空蒸發、濺射、離子鍍,鈦和鈦合金常用的 PVD 涂層為 DLC(Diamond-like Carbon)類金剛石膜和 TiN(Titanium nitride,氮化鈦)。
DLC 膜不僅具有諸多與金剛石相似的性能,如硬度高、摩擦系數低、電阻率高、電絕緣強度和熱導率高,還具有良好的化學穩定性和耐腐蝕能力,因此 DLC 膜是鈦閥門零件最常用的表面改性材料。鈦閥的閥桿、滑動軸承、閥桿螺母均可使用 DLC 膜提高其耐磨性,且磨損較輕的密封面也可使用 DLC 膜,如平面密封的截止閥和軟密封球閥的球體。
TiN 是第一個產業化的薄膜材料,其涂層厚度一般為 3μm~10μm。較薄的涂層有較好的結合強度,不易產生剝落,可作為承受沖擊載荷的零件涂層。零件在承受摩擦和擠壓的過程中會產生較高的內部壓應力,易在接觸面引起過載,而較厚的涂層會使涂層與基材之間發生剪切斷裂,因此對于易發生磨損的零件,將其涂層厚度限制為 5μm。TiN 膜具有硬度高、耐腐蝕、化學穩定性好、摩擦系數低和不粘性好等特點,可大幅改善鈦和鈦合金的使用性能,故 TiN 是鈦合金閥門零件常用的表面硬化材料,主要應用于有磨損的零件處,例如截止閥的密封面和三偏心蝶閥的密封面等。
3.3 離子滲氮
離子滲氮是鈦和鈦合金最常用的表面處理工藝之一,離子氮化可使純鈦材料的表面硬度提高 6~8 倍,可使鈦合金材料的硬度提高 4 倍 [14]。鈦和鈦合金的離子滲氮工藝溫度通常在 850℃以上,此時零件易產生變形,且離子滲氮后工件的表面粗糙度降低。當閥門密封件采用離子滲氮時,為避免上述問題,需制作特殊的工裝以限制或減少零件的變形,從而保證離子滲氮后零件的變形不會影響閥門的密封性能。
3.4 氧化處理
雖然鈦材在空氣中自然產生的氧化膜具有一定的抗腐蝕性,但其耐磨、硬度、厚度等方面的綜合性能并沒有達到閥門的實際應用需求,因此需要對其進行表面氧化改性。最常用的氧化處理工藝是陽極氧化和微弧氧化 [15,16]。陽極氧化是在相應的電解溶液中和特定的工藝條件下施加外加電流,而在鈦及鈦合金表面上形成一層氧化膜的過程被稱為電化學氧化,該過程可顯著提高工件的耐磨和耐蝕性能,絕緣性能較好。微弧氧化是指把基材放在電解質溶液中,利用微弧放電在金屬表面原位生長氧化膜的技術,又稱微等離子體氧化;其優點在于氧化處理后的工件表面不僅具有良好的韌性、耐腐蝕、耐磨特性,還具有部分陶瓷材料的功能特性,如磁電屏蔽能力、生物醫學性能及良好的絕緣性。
通過對鈦材零件進行不同的表面處理工藝,可有效改善其表面的耐磨、耐蝕和硬度等特性。不同的工藝方法可使零件表面處理后的性能參數存在差異,鈦和鈦合金表面處理后性能參數見表 5。
表 5 鈦和鈦合金表面處理后性能參數
工藝 | 涂層硬度 / HV | 涂層厚度 / μm | 摩擦系數 | 耐熱溫度 / ℃ | 涂層顏色 | 應用 |
離子滲氮 | 500~1000 | 10~150 | 不影響 | 600 | 淡黃色 | 球體、閥座、密封面 |
陽極氧化 | 350~600 | 1~3 | 不影響 | 200 | 多色可選 | 閥體、閥蓋、緊固件 |
微弧氧化 | 1000~2000 | 10~15 | 不影響 | 200 | 灰色或棕色 | 閥體、閥蓋、緊固件 |
噴涂 - WC | 1200~1300 | 100~250 | 變大 | 450 | 灰色 | 密封面 |
噴涂 - CrC | 800~1000 | 100~250 | 變大 | 600 | 灰色 | 密封面 |
PVD-DLC | 2500 | 1~5 | 0.1~0.2 | 300 | 灰色 | 閥桿、密封面 |
PVD-TiN | 2300 | 2~5 | 0.6 | 600 | 黃色 | 密封面 |
4、鈦和鈦合金閥門的應用
鈦和鈦合金閥門主要是利用鈦金屬材料具有的優異抗海水和液態介質腐蝕能力。由于其高性價比能抵抗多種腐蝕介質的侵蝕,在民用耐腐蝕工業輸送管線中可解決不銹鋼、銅或合金鋼閥門難以解決的腐蝕問題,具有安全、可靠,使用壽命長等優點,廣泛應用于氯堿工業、純堿工業、制藥工業、化肥工業、精細化工業、紡織纖維合成和漂染工業、基本有機酸和無機鹽生產,以及硝酸工業等。雖然鈦閥在化工領域應用廣泛,但必須注意其并非適于任何化學介質。例如,4 種無機酸(氫氟酸、鹽酸、硫酸和正磷酸)、4 種熱濃有機酸(草酸、甲酸、三氯乙酸和三氟乙酸)和腐蝕性極強的氯化鋁均會對鈦及鈦合金產生嚴重的腐蝕作用,因此鈦閥不適用于此類化工介質,使用中應格外注意 [17]
鈦和鈦合金閥門憑借其卓越的性能和可靠性,在深海油氣開采這一極具挑戰性的環境中展現出獨特的優勢。深海油氣開采作為當代能源產業的前沿領域,其開采環境具有高壓、低溫、高鹽腐蝕性等特點,對所使用的設備材料提出了極為嚴苛的要求,鈦和鈦合金閥門以其高強度、低密度、優良的耐腐蝕性和出色的耐低溫性能,在這一環境中正發揮著重要作用。
在實際應用中,鈦和鈦合金閥門在深海油氣開采中主要應用于以下幾個方面: (1) 油氣輸送管道系統 鈦和鈦合金閥門被廣泛應用于深海油氣輸送管道系統,用于控制和調節油氣的流量和壓力。鈦和鈦合金閥門的優良耐腐蝕性和密封性能確保了油氣輸送的安全性和高效性。 (2) 海底生產平臺 在海底生產平臺,鈦和鈦合金閥門用于控制和調節各種設備和系統的流體流動。因其輕質高強和耐腐蝕性能,致使設備更加緊湊、可靠,從而降低了維護成本。 (3) 深海鉆井設備 鈦和鈦合金閥門還被應用于深海鉆井設備中,用于控制和調節鉆井液的流動。鈦和鈦合金閥門優異的耐高溫和耐腐蝕性能確保了鉆井設備的穩定運行和鉆井作業的安全。
5、結語
本文參考行業標準,列出了鈦和鈦合金球閥的典型結構,對鈦和鈦合金閥門額定穩壓值的設計選取以及材料選用原則提供了參考依據。通過對比不同表面處理工藝,總結出鈦和鈦合金閥門零件表面處理后的性能參數,以及鈦和鈦合金閥門在石油化工等行業中的應用。雖然鈦和鈦合金閥門已在多個領域被廣泛應用,但實際應用中仍面臨一些挑戰,需要采取相應的解決方案。隨著技術的不斷進步和市場需求的不斷變化,鈦合金閥門將在多個方面實現突破和發展。首先,新型鈦合金材料的推出將進一步優化閥門性能,提高其耐腐蝕性、強度和韌性,以適應更為極端的工作條件。其次,在制造工藝上,先進的加工技術和自動化生產線的應用將提高生產效率和質量穩定性,降低成本,增強市場競爭力。相信在未來的發展中,鈦合金閥門將朝著智能化、綠色環保、高性能化和定制化服務的方向發展,為各行各業提供更加優質、高效的服務,為實現可持續發展做出更大的貢獻。
參考文獻
[1] 索江龍. 3D 打印技術在閥門產品中的應用研究 [J]. 閥門,2019,(04):32-33+37.
[2] 陸培文。實用閥門設計手冊 [M]. 北京:機械工業出版社,2012.
[3] ASME B16.34-2020, 法蘭端、螺紋端和焊接端閥門 [S].
[4] ASME BPVC.II.D.M-2023, 美國機械工程師協會鍋爐和壓力容器國際規范第二卷 D 篇 [S].
[5] NORSOK L-001-2004, 管道和閥門 [S].
[6] ASTM B381-2021, 鈦及鈦合金鍛件標準規范 [S].
[7] ASTM B367-2013, 鈦及鈦合金鑄件標準規范 [S].
[8] ASTM B348-2013, 鈦及鈦合金棒材和鋼坯標準規范 [S].
[9] GB/T 2965-2007, 鈦及鈦合金棒材 [S].
[10] GB/T 6614-2014, 鈦及鈦合金鑄件 [S].
[11] GB/T 1972-2005, 碟形彈簧 [S].
[12] 羅焱澤,趙朋舉,余巍,等。閥門用鈦合金碟形彈簧 [J]. 材料開發與應用,2015,30 (05):68-72.
[13] 張林森。金屬表面處理 [M]. 北京:化學工業出版社,2016.
[14] 李國英。表面工程手冊 [M]. 北京:機械工業出版社,1998.
[15] 屠振密,朱永明,李寧,等。鈦及鈦合金表面處理技術的應用及發展 [J]. 表面技術,2009,38 (06):76-78+86.
[16] 黃嘉琥。化工設備設計全書分冊 - 鈦制化工設備 [M]. 北京:化學工業出版社,2002.
[17] 張永強,余巍,崔紅力,等。鈦合金閥門的應用及其選材 [J]. 流體機械,2013,41 (09):44-48.
相關鏈接